1、前 言
由于目前市政行业中,收水井主要以砖砌为主,普通实心粘土砖用量较大,为了贯彻国家环保施工的方针,以及建筑业禁限使用普通实心粘土砖的通知,我公司预制厂科技人员成立QC小组,成功研制出预制混凝土收水井来替代传统粘土砖砌筑,本工法针对预制混凝土收水井的施工而编制,适用于所有无特殊要求的市政雨水工程收水井的施工。
2、工 法 特 点
与传统的实心粘土砖砌筑收水井相比,使用预制混凝土收水井施工具有以下优势:
2.1、可取代实心粘土烧结砖,施工环保,符合国家禁限实心粘土砖政策;
2.2、井室的墙壁更直顺、美观,不受操作工人水平影响;
2.3、比起砖砌,安装速度更快,安装后可以直接回填,大大提高施工工期。
2.4、整体性好,防渗漏性更高。
3、工艺原理
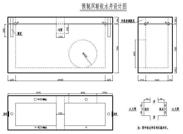
预制混凝土收水井尺寸参照《市政排水管道工程及附属设施》图集,确定为以下图示尺寸(以双联收水井尺寸为例),收水井采用工厂定型模具预制,现场具备安装条件后,运输、安装。收水井预制作
业时,井壁、井底内用φ8钢筋布设网片,混凝土采用C30标号,强度远远超过普通粘土砖的强度要求。
预制收水井设计图(双联)

预制收水井尺寸参数(双联)
平面尺寸:
长(mm) | 宽(mm) | 壁厚1(mm) | 壁厚2(mm) | 井室尺寸(mm) |
1680 | 550 | 120 | 70 | 1440*360 |
其他尺寸:
井室深度 | 井底厚度(mm) | 预留孔(mm) | 一套重量(kg) |
可调至设计深度 | 80 | φ450 | 779 |
预制收水井效果图

4、工艺流程及操作要点
4.1 预制混凝土收水井施工的工艺流程图如下:
收水井预制、安装工艺流程

4.2操作要点
4.2.1 施工准备
4.2.1.1 预制厂与项目部沟通,确定收水井数量、规格、工期等,及时做好准备工作。
4.2.2收水井预制作业
4.2.2.1严格按照设计图纸加工钢模板,模板接缝要严密,不漏浆,支撑要牢固,保证不变形。
4.2.2.2 钢筋网片的绑扎要牢固,间距均匀,井壁与井底连成整体,钢筋末端要带弯钩。
4.2.2.3 采用C30混凝土进行浇筑,配合比要准确,浇筑前检查预留空洞位置是否准确、牢固,振捣要密实。地板浇筑完成,待混凝土初凝后,放置内模,固定牢固后,浇筑井壁混凝土。
4.2.2.4 脱模时要保证预制井棱角不受损坏,成型的产品要及时洒水覆盖养生,周期不少于14天。
4.2.2.5 井室深度调整块,单独模具进行预制,根据现场情况与井室配套使用。
4.2.2.6 脱模后,对成型的产品尺寸进行检查,尺寸检查标准及方法如下:
项 目 | 允许偏差(mm) | 检验方法 |
井室长度 | ±5 | 尺量两端及中部,取最大值 |
井室宽度 | ±5 | 尺量两端及中部,取最大值 |
井壁厚度 | ±5 | 尺量两端及中部,取最大值 |
预留空洞位置 | 5 | 尺量中线位置 |
对角线 | 10 | 尺量两个 对角线 |
4.2.3收水井安装作业
4.2.3.1收水井基坑开挖:路基底基层(一般为灰土)完成后,就可以测量定位收水井的位置,放线位置要准确。为了便于安装,基坑开挖宽度要进行放宽,靠路缘石一侧放宽宽度不小于20厘米。基坑开挖到位后,要及时清除掉超长的预留管管头,管头与井室线对齐。
4.2.3.2 收水井基础采用素土夯实和15厘米3:7灰土,压实度要符合规范要求,灰土表面要平整,为了安装收水井时便于调整收水井顶面水平度,可在灰土上铺设3厘米细砂,细砂的顶标高为预留管底面向下10厘米。
4.2.3.3 收水井安装前准备工作完成后,采用随车吊运输至施工现场,便可配合进行安装,收水井上有预留吊环,便于起吊安装,人工配合,可一次安装到位。收水井按照各自位置采用流水线进行安装。
4.2.3.4收水井安装前,预埋管的管头要及时缠绕两圈油麻,安装到位后,油麻与井壁预留孔的空隙,采用M15防水砂浆进行填充,为了填充更密实,防水砂浆中可掺入水泥用量4%的膨胀剂。
4.2.3.5 预留管与井壁孔洞填充完成后,采用细粒式混凝土在井底浇筑流水槽,流水槽顶面不得高于预留管管内底,并设置一定的收水坡度。
4.2.3.6预制井的深度达不到需求时,可采用井室深度调整块,调整块底层铺设2厘米砂浆坐实,调整块预留孔与井室预留孔对齐后,里面放置30厘米长的Φ12的钢筋,并用砂浆填充,使调整块与井室结合成整体,调整块与井壁连接处的预留凹槽,采用砂浆抹平。
4.2.3.7收水井安装完成后,及时回填井周围,要分层夯实,压实度满足道路基础要求,回填完成后安装收水井上的路缘石以及井框、井箅,井壁子安装后要与两侧平石齐平。
5 劳动组织
收水井施工分为预制、安装两个作业环节,人员配备如下:
5.1预制
5.1.1 钢筋制作、模版安装:2人
5.1.2 混凝土浇筑、养生等:2人
5.2安装
5.2.1基坑开挖: 1人
5.2.2配合安装、管头处理等: 1人
6 材料和机具配置
6.1材料配置:
6.1.1 C30混凝土:单联每套0.2方、双联每套0.33方。
6.2.2 钢筋:单联每套14kg、双联每套20kg。
6.2.2防水砂浆:封堵管头与井壁空隙用,每套井0.016方。
6.2测量仪器配置
6.2.1垂球:1个
6.2.2水准仪:1台
6.2.3小钢钢尺:1把
6.3施工机具配置
6.3.1电夯:1台
6.3.2振动棒:1台
6.3.3随车吊:1辆
7 质量控制
7.1预制收水井施工质量遵守《给水排水管道工程施工及验收规范》(GB 50268-2008)、《混凝土结构工程施工规范》(GB50666-2011)、《混凝土结构工程施工质量验收规范》(GB50204-2015)。
7.2预制收水井强度、尺寸偏差应符合规定。
7.3混凝土振捣密实,表面无麻面、蜂窝。
7.4预留孔尺寸、位置要定位准确,便于安装。
7.5主要控制参数
7.5.1混凝土强度达到C30,抗渗等级P6;
7.5.2井框安装后井深度≥1000mm;
7.5.3井室截面尺寸:±10mm。
8 安全与环境保护
8.1收水井钢筋制作、模板支护、混凝土浇筑过程中应准确佩戴安全防护用品,防止发生机械伤害、触电等安全事故。
8.2收水井运输、起吊前,应检查钢丝绳、机械性能等是否可靠,吊装过程中,专人指挥,吊臂下严禁站人。
8.3施工所用材料必须按定额准确计算,以免造成浪费和污染,对于剩余砂浆等材料,必须按规定投放指定地点,严禁随意丢弃。
8.4收水井施工完成,井口应可靠封闭,以免引起安全事故。
8.5对产生噪音、震动的施工机械(具),采用有效的控制措施,减轻噪音扰民,并且不应安排在夜间施工。
9 效益分析
9.1采用预制混凝土收水井取代实心粘土砖砌筑收水井,既符合国家禁限实心粘土砖政策,又施工简便,井室更加牢固、美观,在未来必然彻底替代实心粘土砖,发展前景极其广阔,及时研究与推广,必然能走到行业前列,为企业带来可观的经济效益。
9.2采用预制混凝土收水井,工厂批量流水线生产,模具等摊销次数多,材料浪费少,直接成本与砖砌基本持平,但是,安装速度快、整体性好,安装后可以直接回填,大大提高施工工期,能提高工效100%以上,间接经济效益明显。
